浏览数量: 38 作者: Chaos 发布时间: 2024-03-20 来源: 本站
来自意大利的老客户,与我们一直保持着良好的合作关系,上周我们刚完成了他们的一个Hastelloy C22合金法兰的订单。这个订单取得的也很顺利,基于之前多个订单顺利的进行,客户已经对我们十分信任,这批Hastelloy C22合金法兰属于高端的镍基合金材料,客户十分放心的交给我们公司来操作。我们也用专业的服务和良好的产品回报了客户的信任,很快完成了订单的交付。

采购订单明细
| 列表 | 货物描述 | 产品 | 尺寸 | 压力 | 材质 | 标准 | 数量 | 单位 |
| 1 | FLG EN10902-1 – 01/B DN.15 PN16 HASTELLOY C22 | 平板法兰 | DN15 | PN16 | HASTELLOY C22 | EN10902-1 TYPE 01/B | 8 | EA |
| 2 | FLG EN10902-1 – 01/B DN.25 PN16 HASTELLOY C22 | 平板法兰 | DN25 | PN16 | HASTELLOY C22 | EN10902-1 TYPE 01/B | 13 | EA |
| 3 | FLG EN10902-1 – 01/B DN.40 PN16 HASTELLOY C22 | 平板法兰 | DN40 | PN16 | HASTELLOY C22 | EN10902-1 TYPE 01/B | 4 | EA |
| 4 | FLG EN10902-1 – 01/B DN.50 PN16 HASTELLOY C22 | 平板法兰 | DN50 | PN16 | HASTELLOY C22 | EN10902-1 TYPE 01/B | 55 | EA |
| 5 | FLG EN10902-1 – 05/B DN.25 PN16 HASTELLOY C22 | 盲板法兰 | DN25 | PN16 | HASTELLOY C22 | EN10902-1 TYPE 05/B | 3 | EA |
| 6 | FLG EN10902-1 – 05/B DN.50 PN16 HASTELLOY C22 | 盲板法兰 | DN50 | PN16 | HASTELLOY C22 | EN10902-1 TYPE 05/B | 4 | EA |
| 7 | FLG EN10902-1 – 05/B DN.50 PN16 HASTELLOY C22 WUTT CENTRAL OLE DIAM. 23mm | 盲板法兰 | DN50 | PN16 | HASTELLOY C22 | EN10902-1 TYPE 05/B | 9 | EA |
| 8 | FLG EN10902-1 – 05/B DN.50 PN16 HASTELLOY C22 WUTT CENTRAL OLE DIAM. 35 mm | 盲板法兰 | DN50 | PN16 | HASTELLOY C22 | EN10902-1 TYPE 05/B | 4 | EA |
Hastelloy C22 材料介绍
Hastelloy C22是一种高端镍基耐腐蚀合金,主要基于镍、铬和钼,并含有钨和小量铁。它的主要化学成分包括镍(50%-60%)、铬(20.0%-22.5%)、钼(12.5%-14.5%)、铁(2%-6%)和钨(2.5%-3.5%)。这种独特的化学配比赋予了Hastelloy C22一些特殊的性能优势,如极强的抗酸腐蚀性、优良的耐湿氯和氧化氯环境的能力,以及在大气及冷减的淡化酸和酸化盐中的优异稳定性。
化学成分
| CHEMICAL | LIMITS | Ni | Fe | Mn | C | Si | S | Cr | Mo | P | W | Co | V |
| Hastelloy C22 | MIN | Balance | 2.00 | 20.00 | 12.50 | 2.50 | |||||||
| MAX | 6.00 | 0.50 | 0.02 | 0.08 | 0.02 | 22.50 | 14.50 | 0.02 | 3.50 | 2.50 | 0.35 |
机械性能
| MATERIAL | T.S (MPA) | Y.S (MPA) | EL % |
| Hastelloy C22 | 690 min | 276 min | 30 min |
Hastelloy C22 法兰
Hastelloy C22对应美标材料牌号为ASTM B564 UNS N06022,作为一种高性能、高耐腐蚀性的材料,具有优良的抗氧化性、耐酸碱性、耐腐蚀性、高温性能以及良好的机械性能等特点,采用Hastelloy C22作为原材料锻制而成的法兰,具有极强的耐腐蚀性能,可以抵御各种强酸、盐酸、氢氟酸等强酸性溶液的侵蚀,对各种酸性环境具有极高的耐蚀性。Hastelloy C22法兰具有很好的耐热性,可以在高温环境下长时间使用,而且机械性能优异,硬度高、抗压强度大、耐磨损。因此被广泛应用于各种石化、化工、电力等领域。

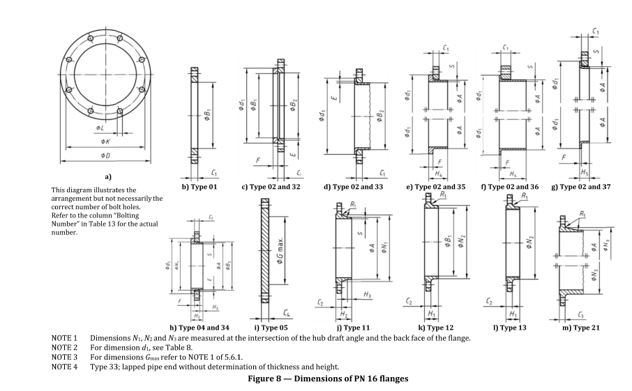
Hastelloy C22 法兰的尺寸
这批Hastelloy C22法兰订单,客户要求按照EN1092-1的生产标准进行生产,EN1092-1是关于法兰的生产标准,它定义了法兰的尺寸、形状、表面处理、压力等级以及法兰类型等要求,并规定了法兰的结构、材料和静力计算方法,以满足不同应用场合的需求。
订单完成后,我们对这批法兰进行了出厂检验,确保客户收到的这批Hastelloy C22法兰符合EN1092-1标准参数要求。
EN1029-1 PN16 法兰尺寸参数


